物件名:Life Rama 4 – Asoke
“バンコクの台所”と呼ばれる巨大な生鮮市場『クロントゥーイ市場』の向かいに建築される新築コンドミニアムです。
まだコンドミニアムが少なく、ローカル感のあるエリアですが、
バンコクを代表するビジネス街で一大商業エリアのアソーク、日本人街のスクンビットまで一駅という高い利便性を誇ります。
また、ホテル、デパート、銀行、レストランなどが立ち並び、タイ経済の中心とも言われるシーロムや、
バンコクからカンボジア国境まで続くタイの四大主要道路の一つ スクンビット通りまでの1本道で行くことができる ラマ3世通り、
昔ながらの雰囲気と近代商業施設が混在するプラカノン方面、高級日本人街のプロンポンエリアへと、各方面へほぼ直線的に行くことができる唯一の立地です。
物件名にもある「ラマ4世通り」は、タイ最大規模の複合施設『One Bangkok』をはじめとする大規模プロジェクトが多数あり、オフィスビル、ホテルが多く建築される予定です。
バンコクの各方面へのアクセスが容易で、大型商業施設が建築されるため、タイ人、外国人を含め、今後は居住者が集まることが予測されます。
本物件は39階建てで、周辺には高い建物が無いため目立つ建築物となり、
高層階からは南側にチャオプラヤー川、北側にはアソークのビル群、ベンジャキティ公園を見渡すことができます。
敷地面積が5ライ(8,000㎡)を超える大規模プロジェクトのため、共用施設のグレードも高く、
38階にはプールとジムが設えられ、39階はワンフロア全てがスカイガーデンとなります。
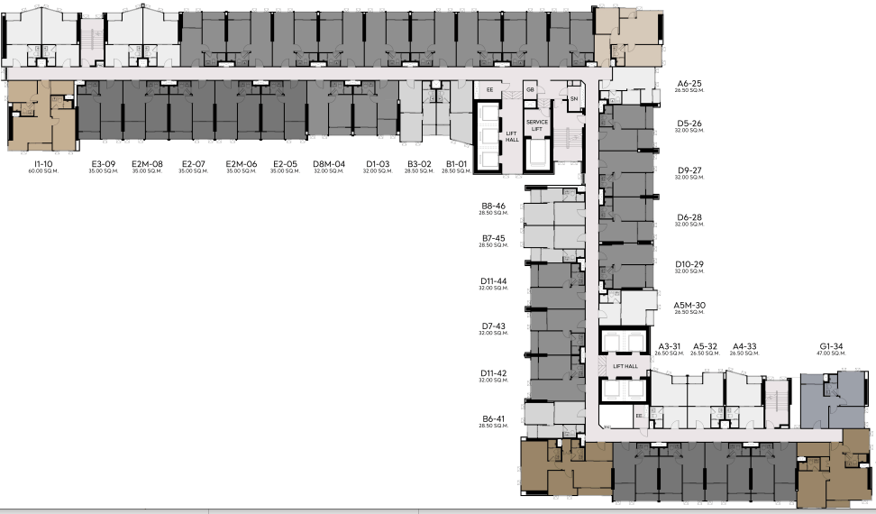
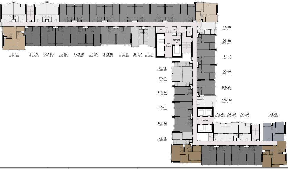
1階から8階までは駐車場、住居は9階からです。
間取りはスタジオタイプ、1ベットルーム、2ベットルーム、Duplexタイプ。
高層階にはメゾネットタイプが販売されています。
アソークやプロンポンエリアまで一駅という距離ながら、同エリアの新築の7割程という魅力的な価格です。
所在地:2619 Rama4rd Khlong Toei, Bangkok
最寄駅:MRT Queen Sirikit駅 徒歩約5分
間取り:Studio、1 Bedroom、Duplex、2 Bedroom
面積:26.5㎡~75㎡
総階数/総戸数:39階建て/1237戸
デベロッパー:AP
築年:2024年末予定
価格:
Studio (26.5㎡) 420万バーツ台(15,540,000円台*)~
2 Bedroom (75㎡) 1200万バーツ台(44,400,000円台*)
単価:平均約160,000バーツ(592,000円*)/㎡
管理費:50バーツ(185円*)/㎡ (Common fee)
積立一時金:500バーツ(1,850円*)/㎡ (Sinking fund)
想定利回り:約4%
*1バーツ(THB)=3.7円換算












